Image
Welcome Guest, • Login
RSS RSS

Navigation






Search the wiki
»

PoweredBy

Page History: Alternate Motor Mounts for Your Unisaw

Compare Page Revisions



« Older Revision - Back to Page History - Newer Revision »


Page Revision: 2008/04/19 01:55


Submitted by John Orvis

With some such adapter bracket- Delta mounting Ears welded to a Base that fits the flat base (per frame size) of your motor- You too can fit a renegade motor to your old Unisaw with Oval opening.

Adapter Bracket made by the vacationing Ken Root and Friend for two Beers. Fits 1 hp 56 frame motor to Oval opening (old style Unisaw). See following: Drawing of bracket.(s) Motor Frame call outs. Adaptation of Special Leeson Motor:

Image

It is only fair to include the design team's statement in their defense.
From: Ken & Janet Root:
John,
I'm back from vacation, just got your email with bracket et al. I'm impressed! Should clarify a point though. It cost two beers for the welding, but we managed to up the beer consumption afterward since we were so pleased with ourselves. You've done quite a job documenting a problem that many people will run into.

Did some damage at Highland Hardware while on vacation. They are really nice people, ready to trade fine tools for dollars.

Regards,
Ken

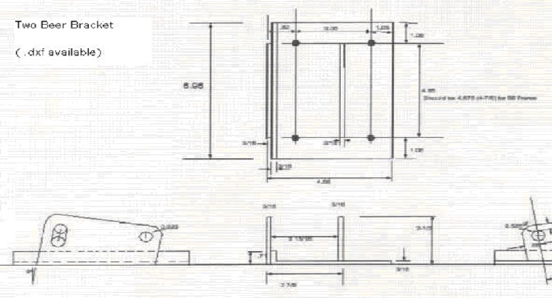
Next is a drawing of the bracket for a 56 frame

Image

Next Web Person Keith as in Bohn was trustworthy or foolish enough to loan me these - Delta distributor created brackets for welding to a motor housing. Probably not a job for the timid, but in the overall scheme of things, doable. Pictures, comparison pictures and drawing follow.

Image

Image

Edges Aligned KB Bracket-2 Beer Bracket

Image

Holes aligned

Image

Image

ScrewTurn Wiki version 3.0.5.600. Some of the icons created by FamFamFam.